Woonoppervlakte
Circa 224 m²
Perceeloppervlakte
Circa 340 m²
Bouwjaar
Gebouwd in 1993
Aantal kamers
10 kamers (5 slaapkamers)

Ganzerikweerd 17

6229 TH, Maastricht (Limburg)

MAASTRICHT (Heugem) - Fijne ruime, uitgebouwde twee-onder-een-kapwoning met garage, 5 slaapkamers en zonnige achtertuin met zwembad, gelegen aan het rustige woonerf van de 'Weerden' in Heugem, ten zuidoosten van het centrum van Maastricht nabij het MUMC+.

Zoek je een comfortabele twee-onder-een-kapwoning op een heel fijne woonlocatie in de gewilde wijk Heugem?
Deze woningbreed uitgebouwde woning biedt alles wat je nodig hebt om fijn en rustig te wonen. Onder meer de grote uitgebouwde woonkeuken, 5 slaapkamers, ruime zolder, een binnendoor bereikbare garage, een zonnige achtertuin op het oosten met zwembad, diverse terrassen en groene ligging, je zult hier volop privacy en gebruiksgemak ervaren.

INDELING:
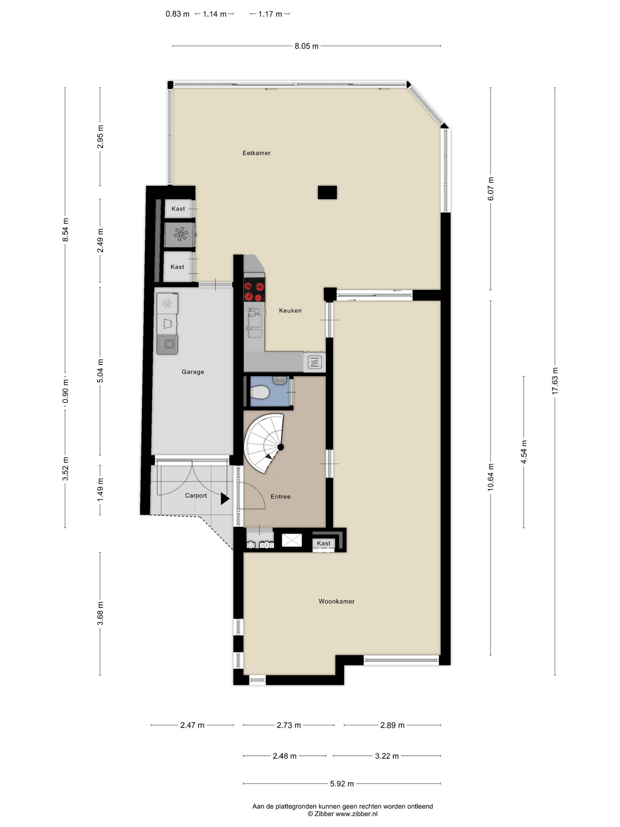
Begane grond:
Entree met meterkast, toiletruimte met zwevend closet en fonteintje, open wenteltrap en toegang tot de L-vormige woonkamer (ca. 44 m²). De woonkamer heeft aan de straatzijde een gezellige zithoek met openhaard welke mooi is weg gewerkt in de wand. Vanuit de woonkamer is er toegang tot de ruime, uitgebouwde woonkeuken (ca. 52 m²). De woonkeuken is voorzien van een L-vormige keukenopstelling voorzien van een houten werkblad, 4-pits inductiekookplaat met RVS-afzuigkap, vaatwasser, RVS-wasbak, combi-oven en een ingebouwde koelkast. De naastgelegen garage is volledig geïsoleerd en is via de woonkeuken binnendoor bereikbaar. De garage is voorzien van witgoedaansluitingen en openslaande deuren naar de straatzijde.

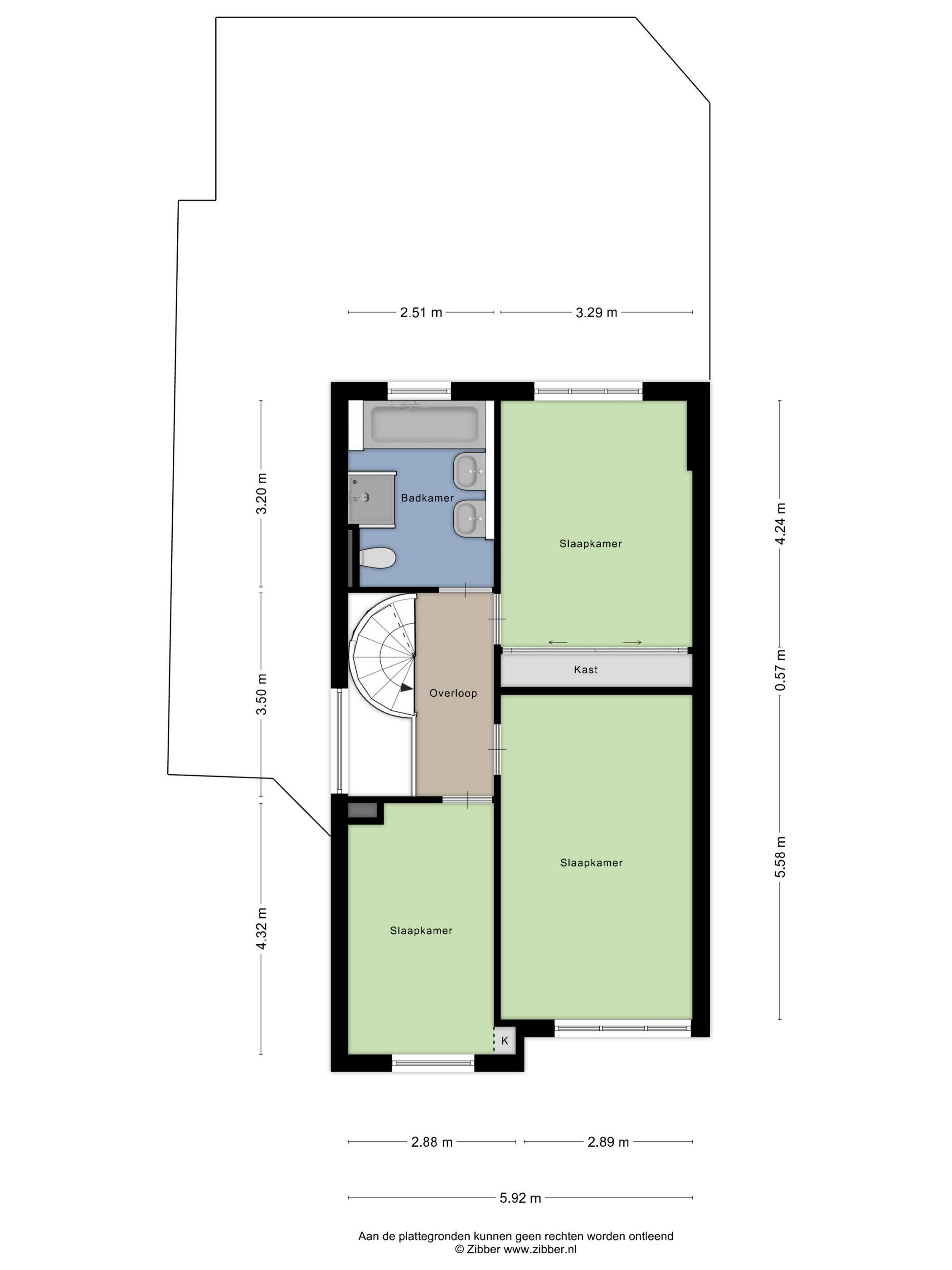
Eerste verdieping:
Vanaf de overloop is er toegang tot de drie slaapkamers en de badkamer.
Slaapkamer 1 (ca. 11 m²), linksvoor.
Slaapkamer 2 (ca. 18 m²), rechtsvoor.
Slaapkamer 3 (ca. 16 m²), rechtsachter en voorzien van wandkast.
De volledig betegelde badkamer (ca. 8 m²) is voorzien van een ligbad, douche, tweede toilet, twee wastafels en een wand brede spiegel.

Tweede verdieping:
Via de vaste trap bereik je de zolderverdieping met de vierde (ca. 14 m², rechtsvoor) en vijfde (ca. 14 m², rechtsachter) slaapkamer en twee bergruimtes. Via de slaapkamer rechtsvoor is de vliering te bereiken middels een trap. De tweede verdieping dient zich uitstekend voor logees en werkruimte.

BUITEN
Ruime achtertuin op het oosten, voorzien van diverse terrassen, graszolen, betegeling, borders met beplanting, en achterin de tuin een ingebouwd zwembad met houten vlonders rondom en een pool-bar, voor de late zomeravonden. Deze prachtige achtertuin geeft jou dé kans om lang na te kunnen genieten van de zomerse temperaturen.

Perfecte ligging in de wijk Heugem:
De woning is gelegen aan een rustig woonerf, ideaal voor gezinnen met kinderen.
Rondom zijn koopwoningen gelegen met vrije sectorwoningen.
Op loopafstand liggen diverse speeltuinen en het sportcomplex Maastricht Zuid. Het bedrijventerrein Randwyck, met onder andere het MUMC+ en het MECC, ligt op steenworp afstand. Daarnaast zijn er meerdere basisscholen, winkelcentrum De Beente en diverse medische voorzieningen in de buurt, waaronder een huisartsenpraktijk, apotheek, fysiotherapeut en er is ook een dierenkliniek.

Samenvatting: Deze ruime woning aan de Ganzerikweerd 17 biedt jou een uitstekende combinatie van comfort, privacy en een gunstige ligging. Een heerlijke gezinswoning waar jij je meteen thuis zult voelen!

Laat deze kans niet voorbijgaan en plan vandaag nog een bezichtiging.
Neem direct contact op met ons, een beller is sneller!

OPLEVERING
In de huidige staat.

AANVAARDING
In overleg, korte termijn mogelijk.

Voetnoot:
ONDERHOUD
De vermelde staat van onderhoud en beoordeling van de bouwkundige toestand is op basis van visuele waarnemingen door de makelaar.
Verkopers voldoen aan hun informatieplicht door het verstrekken van een door hen ingevulde vragenlijst, welke is op te vragen bij de makelaar.

AANSPRAKELIJKHEID
Hoewel gestreefd is naar een zo zorgvuldig mogelijke weergave van de beschikbare gegevens, moet er van uitgegaan worden dat deze brochure slechts indicatief is. De vermelde gegevens (bedragen, jaartallen, omschrijvingen, afmetingen etc.) zijn onder andere verkregen door mondelinge overdracht. Wij attenderen de kopers er op dat, ondanks het verstrekken van deze verkoopinformatie en de vragenlijst, de koper haar onderzoeksplicht heeft.

KOOPAKTE
De koopovereenkomst wordt opgesteld volgens model VBO/NVM. Verkoper stelt uitdrukkelijk dat een koop alleen tot stand komt als over alle hoofdzaken (zoals koopsom) en over de details (zoals oplevering) overeenstemming is bereikt, kopers kunnen (laten) aantonen dat zij onderzoek hebben verricht naar de financiële haalbaarheid van hun aankoop en de overeenstemming schriftelijk is vastgelegd in een koopovereenkomst die door koper en verkoper ondertekend is.

ONTBINDING
De termijn die wordt opgenomen voor eventuele (overeengekomen) ontbindende voorwaarden (b.v. financiering) is in de regel 6 weken na het ondertekenen van de koopovereenkomst.

ZEKERHEIDSTELLING
De waarborgsom/bankgarantie is 10% van de koopsom. De koper dient deze binnen 2 weken na einde voorbehoud(-en) bij de desbetreffende notaris te deponeren.

Wij vertrouwen erop jou hiermee correct te hebben geïnformeerd en hopen je enthousiast te hebben gemaakt voor deze woning.

Hartelijk dank voor jouw belangstelling en graag tot ziens in de woning.
TIM Vastgoed - Thuis In Makelaardij
Tel. 043-350 6900

Plattegronden

Overdracht

Vraagprijs
€ 650.000 k.k.
Status
Beschikbaar
Aanvaarding
In overleg

Bouw

Object type
Eengezinswoning, geschakelde woning
Soort bouw
Bestaande bouw
Bouwjaar
1993
Soort dak
Zadeldak bedekt met pannen

Oppervlakte en inhoud

Woonoppervlakte
224 m²
Perceeloppervlakte
340 m²
Inhoud
844 m³
Overige inpandige ruimte
14 m²
Gebouwgeb. buitenruimte
4 m²

Indeling

Aantal kamers
10 kamers (5 slaapkamers)
Aantal badkamers
1 badkamer
Badkamervoorzieningen
Ligbad, toilet, douche, dubbele wastafel
Aantal woonlagen
4 woonlagen
Voorzieningen
Mechanische ventilatie, rolluiken, tv-kabel, zwembad, rookkanaal, schuifpui, dakraam, glasvezel kabel, natuurlijke ventilatie

Energie

Energielabel
B
Energielabel registratie
13-08-2025
Isolatie
Dakisolatie, muurisolatie, vloerisolatie, dubbel glas
Verwarming
Cv-ketel, vloerverwarming gedeeltelijk
Warm water
Cv-ketel
Cv ketel
Combiketel gas gestookt uit 2014 (huur)

Buitenruimte

Ligging
Aan rustige weg, in woonwijk
Tuin
Achtertuin, voortuin

Garage

Soort garage
Aangebouwd steen
Capaciteit
1 auto
Voorzieningen
Elektra, stromend water

Parkeergelegenheid

Soort parkeergelegenheid
Openbaar parkeren, op eigen terrein

Energieverbruik in Maastricht

Energielabel deze woning

Energielabel B

Publicatie energielabel: 13-08-2025

Stroomverbruik per jaar

2860 kWh

(Gemiddelde tussenwoning in Maastricht)

Gasverbruik per jaar

1210 m³

(Gemiddelde tussenwoning in Maastricht)

* Cijfers zijn afkomstig van het CBS en bedoeld als indicatie en kunnen verschillen voor deze woning

Indicatie hypotheeklasten

Eigen inleg:
Spaargeld / overwaarde

Rente:
Laagste 10-jaars rente

Laagste 10-jaars rente

2,78% - Centraal Beheer Groen... - NHG


3,04% - Centraal Beheer Groen... - 80%

Laagste 20-jaars rente

3,29% - Centraal Beheer Groen... - NHG


3,52% - Centraal Beheer Groen... - 80%

Laagste 30-jaars rente

3,41% - Centraal Beheer Groen... - NHG


3,7% - Argenta Groen Hypotheek... - 80%


Hypotheek:

Bruto maandlasten: € 0 p/m

Netto maandlasten: € 0 p/m

Hoe berekenen we dit?

Het rentepercentage is gebaseerd op de laagste 10 jaars vaste rente voor één hypotheekdeel. De vermelde rente (3.04% zonder NHG) is gecontroleerd op 27-02-2026. Deze berekening is gebaseerd op een annuïteitenhypotheek die volledig wordt afgelost, waarbij de maandlasten gedurende de gehele looptijd gelijk blijven. De werkelijke rente en netto maandlasten kunnen variëren, afhankelijk van uw persoonlijke situatie en de hypotheekverstrekker. Raadpleeg een financieel adviseur voor een nauwkeurige berekening en advies. Aan deze berekening kunnen geen rechten worden ontleend; het dient enkel als indicatie.

Documentatie

Zonnegrenzen bekijken

Op de kaart

Inwoners in Maastricht

Cijfers voor postcodegebied 6229

Totaal aantal inwoners
6670 inwoners
Mannen
48%
Vrouwen
52%

Inwoners in Maastricht

Cijfers voor postcodegebied 6229

tot 15 jaar
10%
15 tot 25 jaar
14%
25 tot 35 jaar
24%
45 tot 65 jaar
31%
65 en ouder
20%

Huishoudens in Maastricht

Cijfers voor postcodegebied 6229

Eenpersoons zonder kinderen
49%
Meerpersoons zonder kinderen
28%
Huishoudens zonder kinderen
77%

Huishoudens in Maastricht

Cijfers voor postcodegebied 6229

Huishoudens met één kind
7%
Huishoudens met meerdere kinderen
17%
Huishoudens met kinderen
24%

Woningen in Maastricht

Cijfers voor postcodegebied 6229

Woningen voor 1945
8%
Woningen tussen 1945 en 1965
11%
Woningen tussen 1965 en 1975
5%
Woningen tussen 1975 en 1985
10%
Woningen tussen 1985 en 1995
55%

Woningen in Maastricht

Cijfers voor postcodegebied 6229

Woningen tussen 1995 en 2005
7%
Woningen tussen 2005 en 2015
4%
Woningen na 2015
1%
Huurwoningen
60%
Koopwoningen
40%

Overige in Maastricht

Cijfers voor postcodegebied 6229

Gemiddelde WOZ waarde
€ 225.000,-
Personen onder de 65 met uitkering
12%

Overige in Maastricht

Cijfers voor postcodegebied 6229

Adressen per km²
1490
Stedelijkheid (schaal 1 op 5)
60%
Postcode kaart 6229 Gemeente kaart maastricht

Korte feiten over Maastricht

Maastricht is een stad en gemeente in het zuiden van Nederland. Het is de hoofdstad van de provincie Limburg en telt 120.837 inwoners (31 januari 2022, bron: CBS). Het is hiermee de grootste gemeente van de provincie Limburg.

Indien u vragen heeft of u wilt een bezichtiging inplannen, dan kunt u gebruik maken van het formulier hiernaast. Er zal daarna op korte termijn contact met u worden opgenomen.

Parkweg 28

6212 XN, Maastricht

043 - 350 6900 info@timvastgoed.nl www.timvastgoed.nl

Over TIM Vastgoed

TIM Vastgoed staat voor 'Thuis In Makelaardij'.

Kantooreigenaar en makelaar-taxateur Tim Schaap heeft sinds 2003 samen met zijn team een uitstekende reputatie opgebouwd in de makelaardij in Zuid-Limburg.

Dankzij hun uitgebreide expertise en op maat gemaakte marketingstrategieën weet het team van TIM Vastgoed hun Zuid-Limburgse aanbod uitstekend te presenteren, wat leidt tot succesvolle resultaten.

Het betrokken en persoonlijke contact met de teamleden die de normen en waarden van het familiebedrijf hanteren, is opvallend en onderscheidend in deze branche.

Vastgoed kopen of verkopen behoort tot de grootste financiële en emotionele investeringen in iemands leven. Het is toekomstbepalend en kan een leven een nieuwe richting geven. Bij TIM Vastgoed zijn ze zich hiervan bewust en behandelen ze dit zorgvuldig. Klanten beschrijven TIM Vastgoed als een ondernemend kantoor waar de medewerkers écht meedenken.

Door te kiezen voor TIM Vastgoed als makelaarskantoor, kies je niet alleen voor een professionele makelaar met bouwkundige expertise, maar ook voor een mensgerichte benadering.

"Onze missie is ervoor zorgen dat iedereen in zijn of haar droomhuis of bedrijfspand kan wonen of werken. We doen alles binnen onze mogelijkheden om die dromen te verwezenlijken," zegt Tim Schaap, mede-eigenaar en gecertificeerde VBO-makelaar/registertaxateur bij TIM Vastgoed.

Wil je nader kennismaken? Klik hieronder voor een korte video-introductie:

Video-introductie TIM Vastgoed
Over TIM Vastgoed
Reviews TIM Vastgoed

Ganzerikweerd 17, Maastricht

€ 650.000 k.k. - Beschikbaar